【月間トピックス】2026年1月号
2022年に、経年劣化診断のご依頼を受けた麻布十番のテナントビルを、この度外装・内装のフルリフォームの設計後に、2026年5月完成を 目指して大規模修繕工事が進んでいます。
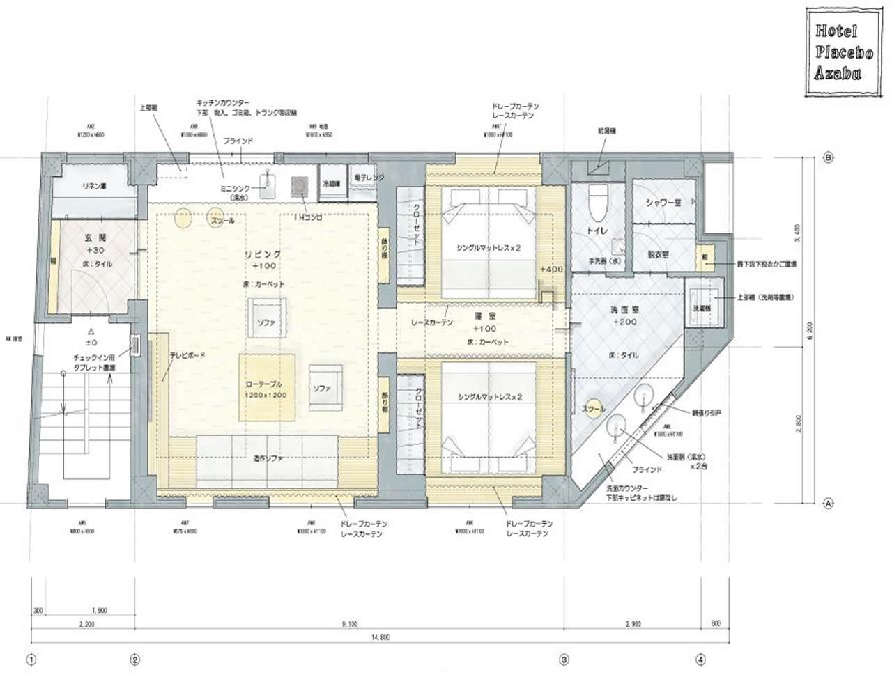
4階建ての鉄筋コンクリート造で、3・4階はシティホテルとして、1・2階はホテルに関連する業種でのテナント貸しを計画しています。
麻布十番の大人でおしゃれな街並みに溶け込むように、白地を基調とした外観を計画しました。
躯体残しで配管・配線更新を含む内外装改修工事となります。建設コンサルタントとして、設計・業者選択・施工監理を請け負って、2025年12月から週1回の定例会を行い、丁寧な施工を進めています。


ホテル仕様の階の平面図

ホテル仕様の内観パース①

ホテル仕様の内観パース②
